На информационном ресурсе применяются cookie-файлы . Оставаясь на сайте, вы подтверждаете, что согласны на их использование и ознакомлены с политикой в отношении обработки персональных данных

Согласен

Для строительства дороги в микрорайоне Ива изымут участки площадью 3,4 гектара

Для строительства дороги в микрорайоне Ива изымут участки площадью 3,4 гектара

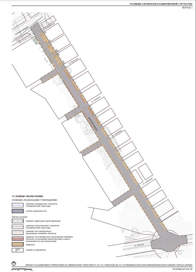
Министерство по управлению имуществом и градостроительной деятельности утвердило документацию по планировке и межеванию территории для строительства Ивинского проспекта.

Это районная улица протяженностью 814 метров должна соединить дорогу Старцева – Ива – Восточный обход и проспект Октябрят. Ее ширина в границах устанавливаемых красных линий варьируется от 18 до 33,5 метра.

Для строительства дороги в микрорайоне Ива изымут участки площадью 3,4 гектара

Изъятию и (или) резервированию подлежат земли, находящиеся в пользовании сельскохозяйственного производственного кооператива «Мотовилихинский». Площади (54,8 га) предназначены для пастбищ, сенокоса, пашни. От них для прокладки дороги потребуется две части – 3,1 га и 0,3 га.

Ранее Business Class писал об изъятии земельных участков для строительства моста через реку Иву.


Схема: проект планировки территории.

Все новости компаний